SALE!!! YESWANTHPUR – Beautifully Designed 3BHK Apartment
North facing, Vaastu compliant, Spacious, Most beautifully designed 3 BHK…
₹1.75 Crore
For Rent
₹6.00 Lacs Monthly












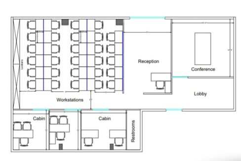
Commercial Office Space Full Building for Rent in Indiranagar with a Site Area of 2600 sq ft and Built up Area of 9000 sq ft. The property is fully furnished and has ample of covered car parking spaces. It has a Server room, Discussion Room, Training room, 5 Cabins, A Conference room, lobby, separate washrooms, Lockers, Work Stations and a Reception.
North facing, Vaastu compliant, Spacious, Most beautifully designed 3 BHK…
₹1.75 Crore
Ultra luxurious 4BHK flat for sale in Kensington road, Ulsoor.…
₹17.50 Cr
Premium 3BHK flat for rent in Whitefield, Bangalore. The flat…
₹40,000.00 /month
RENT!! 2 BHK, BENSON TOWN
Owning a home is a keystone of wealth… both financial affluence and emotional security.
Suze Orman